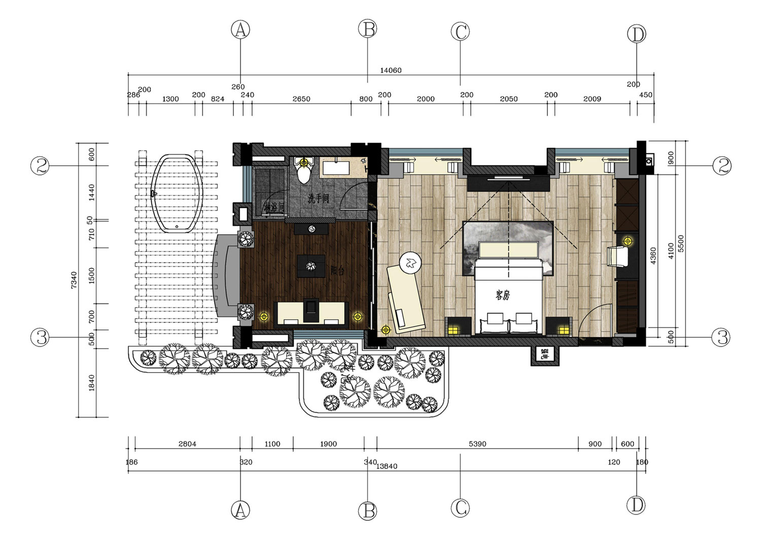
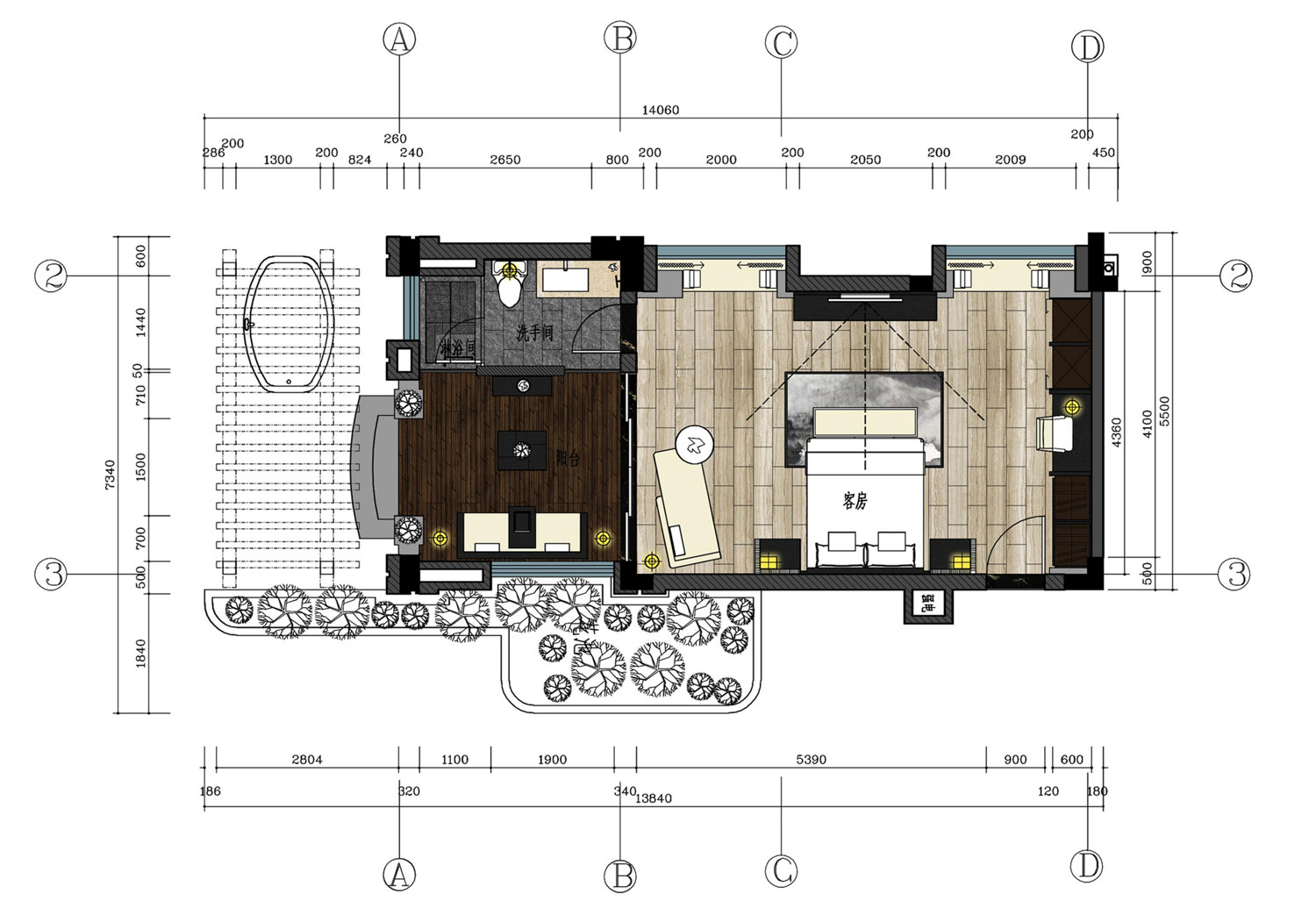
Interior室内装饰

度假村

项目概况

度假村

返回顶部